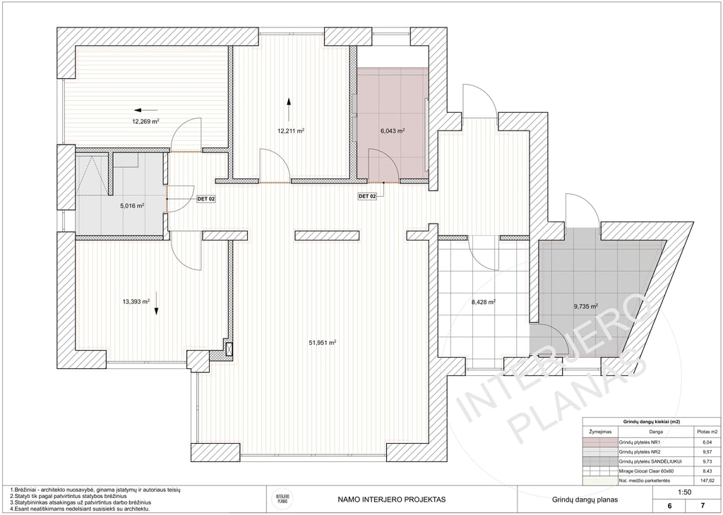
GRINDŲ DANGŲ PLANAS
Planas padės užsakant skirtingus grindų dangų kiekius.
• Grindų plane nurodomos naudojamos grindų dangos, jų kiekiai, klojimo raštas.
• Pažymimos grindjuosčių vietos bei tipas.
• Brėžinyje pateikiamos reikiamos dangų sujungimo schemos.
• Pagal poreikį galime pasiūlyti konkrečius gaminius.
1 vnt - 7 €


KAINA
iki 50 m² - 50 €
iki 90 m² - 80 €
iki 130 m² - 110 €
iki 170 m² - 140 €
Didesnio ploto patalpoms, kaina derinama individualiai
PLANO PAVYZDYS
